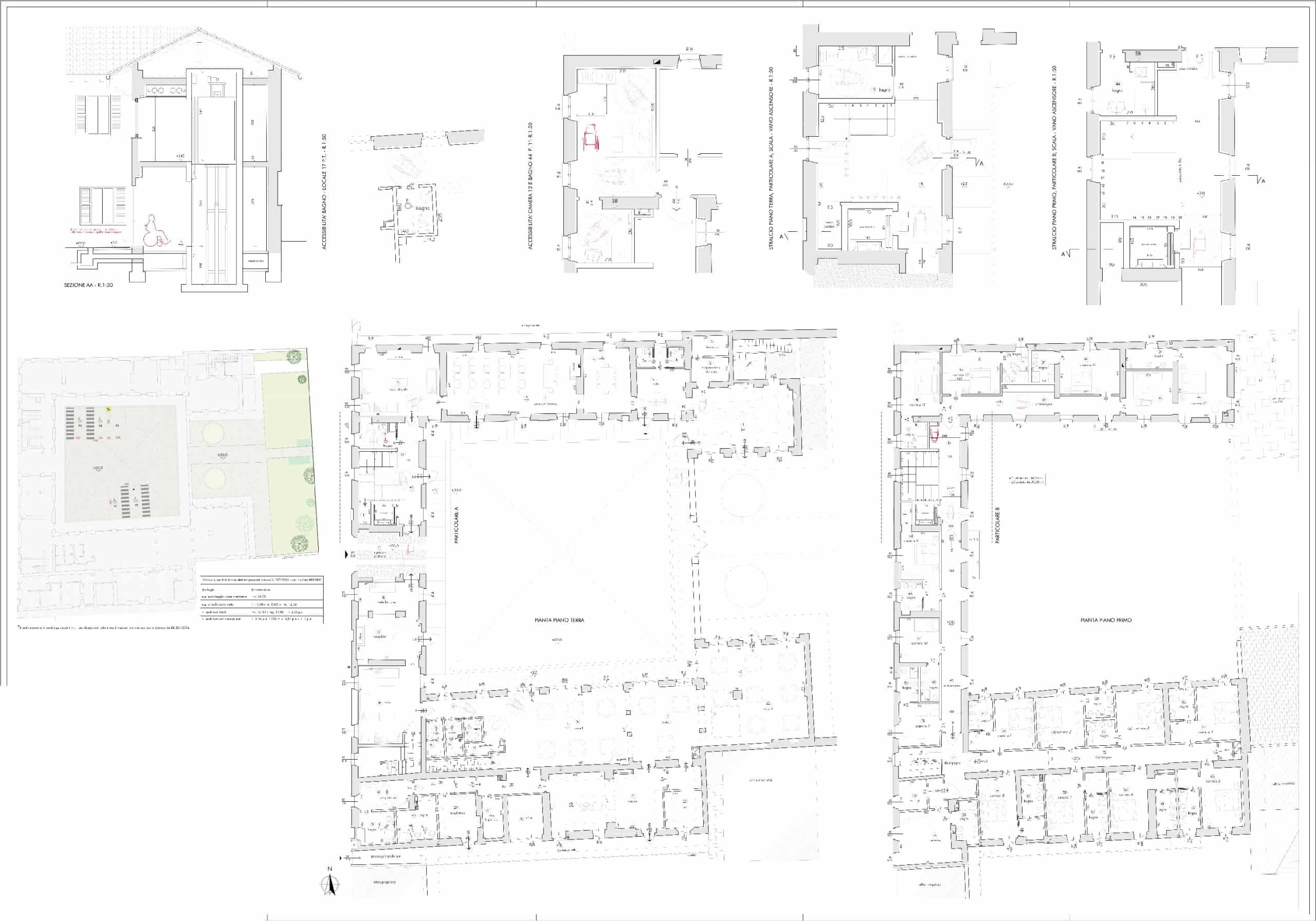
PROGETTO

Progetto ristrutturazione edificio di corte